Imagine 37

Spatiu birouri/comercial | 13 Septembrie - Prosper | 125 mp | Etaj 1

ID: P238599 Bucuresti, 13 Septembrie 50
1.750€
Descriere
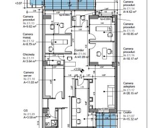
Va prezentam spre închiriere Spatiu birouri/comercial, 125 mp in zona 13 Septembrie - Prosper.

ID anunt: P238599

Pretul include toate cheltuielile si TVA.

Suprafata utila: 125 mp
Suprafata construita: 140 mp
Numar incaperi: 6
Numar grupuri sanitare: 2
Locuri de parcare: La liber
Numar intrari: 2
An constructie: 2005

Pretabil pentru: birou, salon, cabinet etc.


Pentru mai multe detalii, intrebari, programarea unei vizionări sau unei consultatii dedicate, echipa NOVO ESTATE va sta la dispoziție.
Caracteristici
  • ID:P238599
  • Nr. camere:6
  • S. utila:125.00 mp
  • S. construita:140.00 mp
  • Comp.:Compartimentat
  • Nr. bai:2
  • An constructie:2005
  • Structura rezistenta:Beton
  • Regim inaltime:S+P+4
Specificatii
Curent
Apa
Canalizare
Gaz
Telefon
Acces internet
Centrala imobil
Ventiloconvectoare
Izolatie Exterior
Izolatie Interior
Parchet
Gresie
Ferestre PVC
Iluminat interior sistem LED
Nemobilat
Interfon
Lift
Administrare
Paza
Supraveghere video
Localizare
Andreas Gheorghe
Real Estate Consultant & CEO
Esti interesat de aceasta proprietate ?