Imagine 37

Clădire de Vânzare | Calea Plevnei | S+P+3E+4R | 945 mp

ID: P249724 Bucuresti, Calea Plevnei 31
1.700.000€ + TVA
Descriere
Va prezentam Clădire de Vânzare, 944 mp in zona Calea Plevnei.

ID anunt: P249724

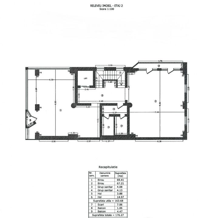
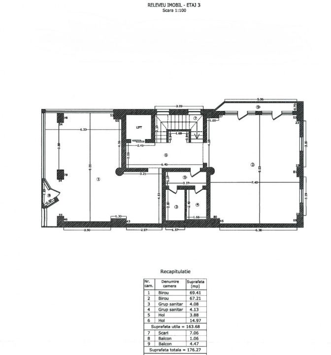
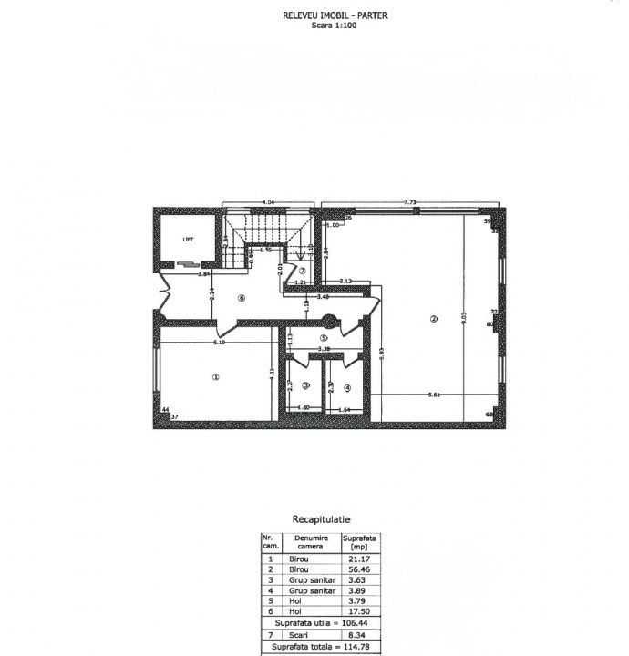
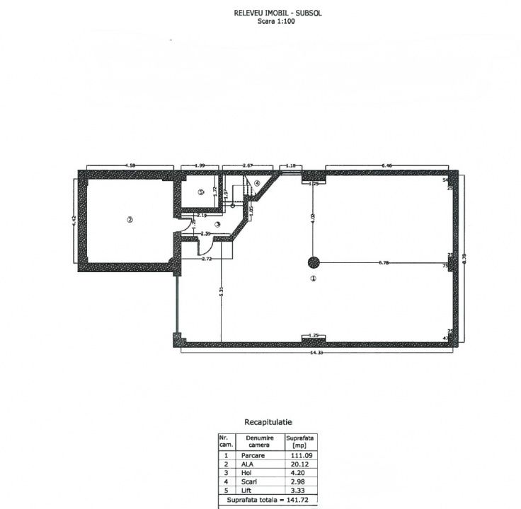
Suprafata totală: 944 mp
Numar incaperi: 10
Numar grupuri sanitare: 10
Numar locuri de parcare: 8
Numar intrari: 2
Curent trifazic: da
Stare interior: finisat
Compartimentat: da
An constructie: 2010
Regim Înălțime: S+P+3E+4R
Amprenta sol: 192 mp
Suprafață teren in proprietate: 200 mp

Clădirea este închiriată in integralitate si generează chirii lunare de 11.200 Euro.

Detalii suplimentare: trafic auto intens, trafic pietonal intens, vizibilitate excelenta

Pretabil pentru: spații birouri, clinica, investiție etc.

- Acces facil către orice punct al orașului prin metrou (Izvor, Eroilor, Grozăvești), autobuz și tramvai
- Supermarketuri și centre comerciale: Mega Image, Carrefour, Lidl, AFI Cotroceni
- Parcurile Cișmigiu, Izvor, Operei, Eroilor
- Grădinițe: Grădinița nr. 46, nr. 73, Grădinița Little London
- Școli: Școala Gimnazială nr. 146 I.G. Duca, Colegiul Național Gheorghe Lazăr
- Universități: Universitatea Națională de Apărare „Carol I”, Facultatea de Drept (Universitatea București), Universitatea Politehnica
- Alăturată de o multitudine de restaurante, cafenele, bistro-uri și spații culturale din zona Cișmigiu – Cotroceni – Eroilor

Pentru mai multe detalii, intrebari, programarea unei vizionări sau unei consultatii dedicate, echipa NOVO ESTATE va sta la dispoziție.

Novo Estate activează la nivel național și internațional, colaborând cu parteneri din Zanzibar și Dubai.

Oferim consultanta gratuită pentru obținerea creditelor imobiliare!
Caracteristici
  • ID:P249724
  • Nr. camere:10
  • S. utila:944.54 mp
  • Comp.:Compartimentat
  • Clasificare:B
  • Etaj:Parter
  • Nr. bai:10
  • Terase:4
  • Nr. parcari:8
  • An constructie:2010
  • Structura rezistenta:Beton
  • Regim inaltime:S+P+4
Specificatii
Curent
Apa
Canalizare
Gaz
Fibra optica
Centrala imobil
Ventiloconvectoare
Parcare proprie
Parcare acoperita
Complet mobilat
Interfon
Localizare
Andreas Gheorghe
Real Estate Consultant & CEO
Esti interesat de aceasta proprietate ?