Imagine 37

Casa de Vanzare | Colentina | P+1+M | 300 mp teren

ID: P209012 Bucuresti, Colentina 53
299.000€ 299.500€
Descriere
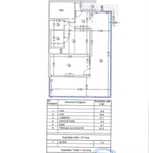
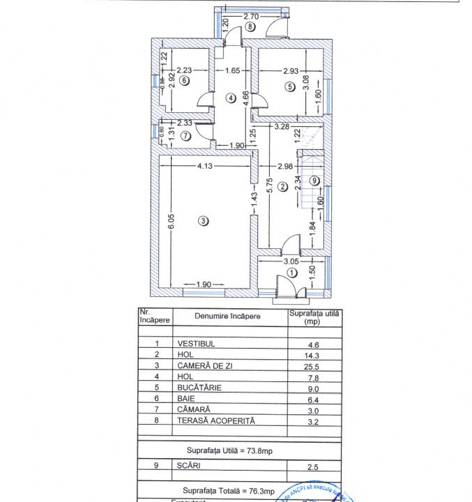
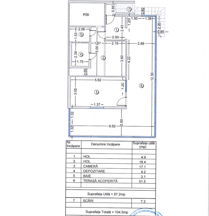
Va prezentam spre de vanzare o casa în zona Colentina, P+1+M, 233 mpu și 300 mp teren.

ID anunt: P209012

Regim de inaltime: P+1+M
Anul constructiei: 1996
Anul renovarii: 2007
Suprafata teren: 295 mp
Amprenta sol: 100 mp
Suprafata utila: 233 mp
Suprafata construita: 325 mp
Numar camere: 7
Numar bai: 3
Numar locuri de parcare: 3
Number pivnițelor: 2
Anexe: garaj (din care se face accesul in pivnița)
Structura: caramida.

Utilitati: curent, apa, gaz, centrala termica, calorifere.

Usa de la intrare este din lemn masiv, ușile interioare de lemn, parchetul este din stejar masiv, iar mobilierul din lemn de cireș.

Pentru mai multe detalii, intrebari, programarea unei vizionări sau unei consultatii dedicate, echipa NOVO ESTATE va sta la dispoziție.
Caracteristici
  • ID:P209012
  • Nr. camere:7
  • Nr. dormitoare:3
  • S. utila:233.00 mp
  • S. utila totala:233.00 mp
  • S. construita:325.00 mp
  • S. teren:295.00 mp
  • Nr. bucatarii:2
  • Nr. bai:3
  • Nr. parcari:3
  • Nr. garaje:1
  • Front stradal:14.62 m
  • Nr. fronturi:1
  • An constructie:2000
  • An renovare:2007
  • Structura rezistenta:Caramida
  • Regim inaltime:S+P+1+M
  • Clasa energetica:A
Specificatii
Curent
Apa
Canalizare
Gaz
CATV
Centrala proprie
Calorifere
Aer conditionat
Izolatie Exterior
Izolatie Interior
Vopsea lavabila
Var
Parchet
Gresie
Ferestre Termopan
Jaluzele Verticale
Usa intrare Lemn
Usa interior Lemn
Pivnita
Anexe
Bucatarie Mobilata
Bucatarie Utilata
Apometre
Contor caldura
Contor gaz
Complet mobilat
Curte
Gradina
Localizare
Novo Estate
Real Estate Consultant
Esti interesat de aceasta proprietate ?