








Va propunem la vanzare un apartament cu 3 camere in Sectorul 3 langa parcul IOR, la 5 minute de mers pe jos de statia de metrou Titan, intr-o zona cu acces rapid la facilitatile unui trai urban modern.
Compartimentarea interioara este de tip semi-decomandat.
Apartamentul este situat la etajul 5, intr-o cladire din anul 1963 cu regimul de inaltime P+8. Bloc anvelopat, fara risc seismic.
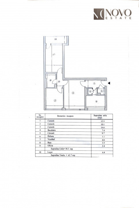
Suprafata utila a apartamentului este de 58.3 mp, suprafata totala este 62.7 mp , confort: 1.
Apartamentul dispune de:
- un living spatios
- bucatarie
- 2 dormitoare
- 1 baie
- hol de acces
- 1 balcon
Finisaje: - Necesita renovare
Oferim consultanta gratuita pentru obtinerea de credit imobiliar.
Pentru mai multe detalii, intrebari, programarea unei vizionări sau unei consultatii dedicate, echipa NOVO ESTATE va sta la dispoziție.
ID anunț: 1761490859